<xmp> <body><script type="text/javascript"> function setAttributeOnload(object, attribute, val) { if(window.addEventListener) { window.addEventListener('load', function(){ object[attribute] = val; }, false); } else { window.attachEvent('onload', function(){ object[attribute] = val; }); } } </script> <div id="navbar-iframe-container"></div> <script type="text/javascript" src="https://apis.google.com/js/platform.js"></script> <script type="text/javascript"> gapi.load("gapi.iframes:gapi.iframes.style.bubble", function() { if (gapi.iframes && gapi.iframes.getContext) { gapi.iframes.getContext().openChild({ url: 'https://www.blogger.com/navbar/37336953?origin\x3dhttp://projectcoris.blogspot.com', where: document.getElementById("navbar-iframe-container"), id: "navbar-iframe" }); } }); </script> </xmp>
the grand entrance

Your introduction goes here
Say, talk about what you love, hate, detest, enjoy doing. Mention about your dreams and wishes too. And remember to always update about yourself, people do get bored. Try to give them in paragraphs. You can add in your web counter if you want too. Keep this long enough to suffice people.




Friday, November 10, 2006

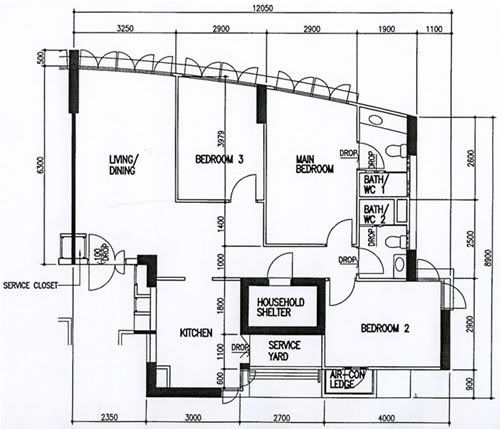
We got the floor plan on Wednesday, during the OTP process. Floor area is approximately 92m².

Next up - to source for an ID, or to simply design it ourselves and then get carpenter in to do the necessary woodwork.



sushi-charmed

Give a rough introduction of your blog. For example, please leave your comments before you leave at the tagboard below.
This blog was revived on DD/MM/YY.
It is currently __ old.

This is your space, for you to display anything to your liking. You can insert your tagboard codes here too. Cbox recommended.


I believe in angels, The kind that heaven sends, I am surrounded by angels, But I call them friends.


confidants


link link link link link link link link link link link link link link link link


credits


Design:
champagnelove♥

Resources:
photobucket
deviantart
dafont

Host:
blogger